
Studentská práce roku Zlínského kraje, STAVOKS, VELUX – „King of daylight“, Wienerberger (Porotherm), Modely staveb z vlnité lepenky
1. místo na Finálové přehlídce (září 2020)
Práce: Bytové domy v Uherském Hradišti, Svatováclavská ul.
1. místo v celostátním kole, kategorie: Rodinný dům (červen 2021)
Práce: Rodinný dům Grunt
1. místo na finálové přehlídce (červen 2023)
Práce: Bytový dům BD U23 na ul. Obeciny ve Zlíně
3. místo v celostátním kole, kategorie: Rodinný dům (červen 2023)
Práce: Bungalow IN23
3. místo v celostátním kole (červen 2016)
Práce: Karlštejn
3. místo v celostátním kole, kategorie: Rodinný dům (červen 2017)
Práce: Rodinný dům
1. místo na finálové přehlídce (květen 2018)
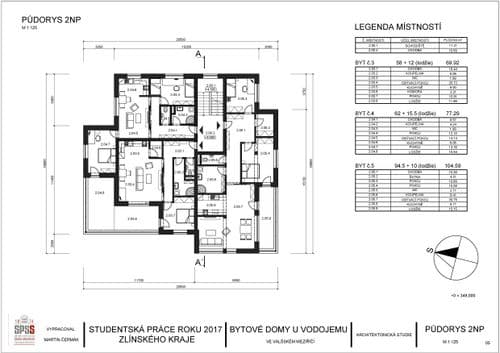
Práce: Bytové domy U Vodojemu ve Valašském Meziříčí
1. místo v celostátním kole, kategorie: Rodinný dům (srpen 2021)
Práce: Rodinný dům Žofíz
1. místo v celostátním kole, obor: Architektura, design a model (únor 2022)
Práce: Rodinný dům Žofíz
1. místo na finálové přehlídce (červen 2022)
Práce:Bytový dům Anýz – Uherský Brod
1. místo v celostátním kole, kategorie: Freestyle (červen 2021)
Práce: Výzkumná stanice
1. místo v celostátním kole (červen 2015)
Práce: Ještěd
1. místo v celostátním kole, obor: Architektura a stavebnictví (listopad 2015)
Práce: Studie multifunkčního centra Zubří